|
|
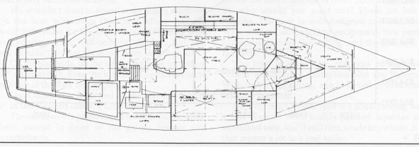
| LOA | 34' 5" |
| LWL | 28' 10" |
| BEAM | 10' 11" |
| DRAFT | 3' 11" |
| DISPLACEMENT | 11,000 LBS |
| BALLAST | 4,400 LBS |


Tartan only made this vessel for ten years (1968-1978) This is one of the few that is shoal draft with a centerboard. All of the ballast is encapsulated in the center board trunk. The board is made of stainless steel. You will find that the board is needed to enhance sailing performance only about 5 percent of the time. This vessel�s sails are in very good shape and include main, 140% genoa, 170% genoa and two spinnakers. Auxiliary power is an Atomic 4, 30 HP engine. She has a very large cockpit with tiller steering, but conversion to a wheel would not be difficult. Other equipment includes pressure cold water, shower, head, alcohol stove, VHF, and Horizon depth and speed meters.
CRUISE A CLASSIC PERFORMANCE BOAT $ 21,900
Click HERE for photos of this vessel
Click HERE for contact information
Click HERE to return to listings page